產品名稱:上海正規的電動插板閥批發價[ 2022-09-05 ]
一、上海正規的電動插板閥批發價產品介紹
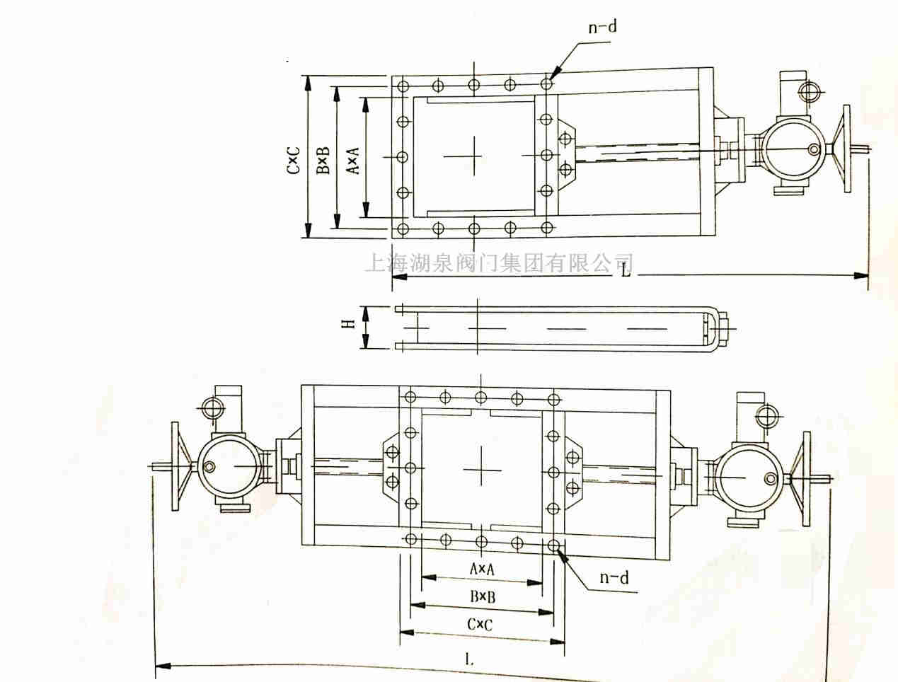
上海湖泉閥門集團有限公司電動插板閥也叫電動螺旋閘閥,該產品通常于卸料器配套使用,電動插板閥的直徑與卸料器進料口配套,有方形和圓形兩種。此電動插板閥產品的優點在于閥體通徑無凹槽,介質不會卡阻堵塞,封閉式插板閥哪家好?上海湖泉閥門專業生產各類閥門,公司整體通過TS壓力管道元件制造許可證,歡迎您的咨詢.是一家集設計,研發,生產,等多種經營于一體,有煙道擋板門,電動插板閥,煙氣擋板門,電動液壓擋板門廠家直銷,價格透明,品質好,一年質保。

二、上海正規的電動插板閥批發價應用范圍
采礦、鋼鐵工業——用于煤漿、濾碴漿等。
食品工業——用于洗滌和沖洗設備,糧食輸送設備,麥芽漿等。
凈化裝置——用于廢水、泥漿、污物及帶有懸浮物的澄清水。
造紙工業——用于任何濃度紙漿、料水混合物。
制糖工業——用于甜菜洗滌、糖漿、榨汁、果汁等。
電站除灰——用于灰渣漿。
三、上海正規的電動插板閥批發價標準規范
結構長度標準:GB/T 12221-2005
連接法蘭標準:GB/T 9113
壓力溫度等級:GB/T 12224-2005
試驗檢驗標準:GB/T 13927-2008


上一篇:dn80鑄鋼法蘭電動閘閥 / 下一篇:電動插板閥DN600 PN16 碳鋼價格
閥門資訊
閥門知識
閥門產品